Omer Lifts IPPO 45 Full Rise Double Scissor Lift
The OMER IPPO 45 is a full-rise pad style lift with an industry-leading ALI Certified lifting capacity of 10,000 lbs. It is engineered with a compact design and rugged construction that takes up less shop floor space while lifting more than our competitors. Its small footprint has the overall dimensions of 50.4 in. x 81.9 in., making it the best solution for compact spaces.
Thanks to its versatility and ease-of-use, this hydraulic car lift is ideal for most passenger vehicles; from small, compact vehicles, up to light duty trucks. It is also equipped with pull out extensions that allow you to safely adjust for any length of wheelbase you might encounter.
It is equipped with a volumetric control to keep the lift level all the time, thanks to a single cylinder with dual chambers. As hydraulic oil is pumped into the lower chamber, the hydraulic oil in the upper chamber is pushed out and directed to the cylinders on each of the runways via a solid aluminum block manifold. This volumetric control guarantees that an equal amount of hydraulic pressure is provided to each of the runways, which, in turn, ensures that the platforms stay level at all times without the need for additional electronic sensors.
The lack of electronic sensors means that the IPPO 45 requires less maintenance than other similar products on the market, while its equalization valve and extra-large pins equipped with zirk grease fittings add to its ruggedness and reliability. Overall, these features translate to less downtime, and make this product the ideal solution for quick-turnaround, high-volume shops.
This ALI-certified car lift is engineered to the highest safety standard. Both platforms are equipped with mechanical safety locks with 21 locking positions. This ensures side to side stability of the lift and eliminates the potential for accidental lowering of the lift. Additional safety features of this product include parachute valves on each cylinder, a maximum pressure valve, a limit switch with acoustic warning for the complete lowering of the lift below 18 inches, a low-voltage control circuit (24V), and manual lowering capabilities in case of a loss-of-power situation.
This double scissor lift has an open front and its rear design, with no tie bars or torsion rods, allows for unobstructed access to the underside of most vehicles on the market. Its independent platform design allows for between 27 inches of working space. The flat-deck platform and “spotting blocks” allow easy vehicle spotting and a quick set-up by the operator, increasing bay productivity.
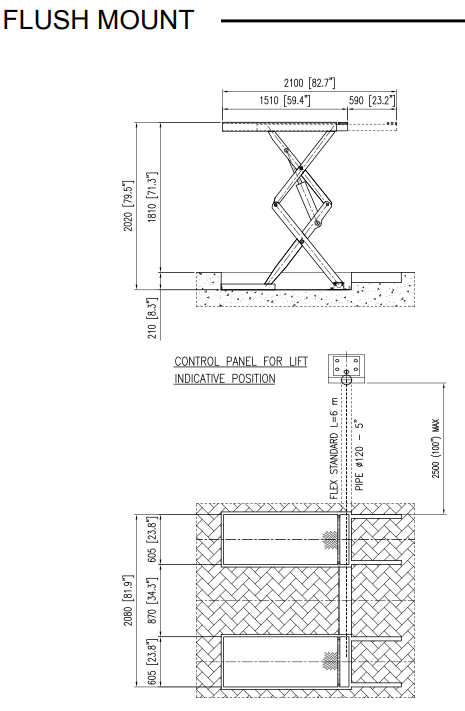
The surface-mounted version comes with low-profile ramp extensions which allow for accessibility of smaller compact cars while still allowing heavier loads. The lift can also be flush mounted, eliminating the need for ramps, and allowing for ultimate productivity and space saving bay solutions.
Features
- Compact design - rugged construction Small foot print takes up less bay space while still allowing best-in-class weight capacities.
- Versatility and ease-of-use - Ideal for small, compact cars up to light duty trucks with pull out extensions allowing ease of use on short or long wheelbase vehicles.
- Volumetric control stays level all the time. Thanks to single cylinder with dual chamber, unit stays level all the time.
- Lower maintenance - less downtime - No Electronic sensors, no equalization valve, extra-large pins with accessible grease tings makes this an ideal lift for high duty cycle shops who require less downtime.
- Built for safety - 21 locking positions ensure side to side stability and eliminates accidental lowering of the lift.
- Unobstructed access - Open front and rear construction with no tire bars or torsion rods allows for unobstructed access to the underside of most vehicles with 27”/ 686mm of working area between the superstructures.
- Easy vehicle spotting - The at deck platform and “spotting blocks” allows for quick set-up by the operator, increasing bay productivity.
- Low pro le approach ramps or ush mount options - The low pro le ramp extensions allow for accessibility of smaller compact cars while still allowing for heavier loads. The lift can also be ush mounted for ultimate productivity and space saving bay solutions.
Specifications
| Capacity | 10,000 lbs. / 4.5T |
| Overall Length - Surface Mount | 160.2” / 4070 mm |
| Overall Length - Flush Mount | 50.4”/ 1510 mm |
| Overall Width | 81.9” / 2080 mm |
| Width Between Runway | 27” to 40” / 686 mm to 1016 mm |
| Deck Width | 23.8” / 605 mm |
| Lowered Height | 8.3” / 210 mm |
| Raised Height | 79.5” / 2020 mm |
| Lifting Time | 55 Secs. Raised /30 Secs. Lowered |
| Power Requirements | 230 Volts - 60 Hz - 1 PH - 23 amp |
| Shipping Weight | 2,850 lbs. / 1.3T |
![]() |
![]() |
Optional Accessories
- Hot-Dipped Galvanization for outdoor or wash-bay use.
- Non-standard power supply 230V-460V / 3Ph / 50-60Hz.
- Hoses length up to 26 ft.
- Hand pump for emergency descent.
- Adjustable frame engaging truck adapter.
- Low approach ramps.
Downloads
Limited Warranty
OMER USA, Inc. lifts are guaranteed to the original owner. OMER USA shall repair or replace, at OMER’s discretion, for the full warranty period, those parts that prove upon inspection to be defective, and pay for reasonable costs of transportation and/or labor for replacement of said parts for the warranty period stated below. This warranty shall not apply unless the product is installed, used, and maintained according to OMER’s specifications set for in OMER’s Installation, Operation and Maintenance Manuals. Use of any unapproved parts or accessories will void your warranty. This limited warranty extends only to the original purchaser and is not transferable.
This warranty does not cover normal maintenance or adjustments, damage or malfunction caused by improper handling, installation, abuse, misuse, negligence, carelessness of operation, or normal wear and tear. In addition, this warranty does not cover equipment when repairs have been made by anyone other than a service technician that has been approved in writing by the OMER Service Department.
This warranty is exclusive and is in lieu of all other warranties expressed or implied including any implied warranty of fitness for a particular purpose, which implied warranties are expressly excluded. No employee, agent, representative, dealer, or other person or entity is authorized to give any warranties of any nature on behalf of OMER USA, Inc.
The remedies described are exclusive and in no event shall OMER USA, Inc. be liable for special, consequential or incidental damages for the breach of or delay in performance of the warranty.
General Warranty Policy for all OMER USA Products:
- 1. Parts: 24 Months
- 2. Labor: 12 Months
General Warranty Terms and Conditions:
- 1. Warranty will commence from the date of the initial invoice.
- 2. OMER USA, Inc. will cover the most cost-effective shipping option for warranty items. If a customer shall request that a part be shipped by a more expeditious method, the difference in cost shall be covered by said customer.
- 3. Warranty does not apply in cases where equipment has been damaged due to improper storage, improper use, uneven loading, accident (including transportation), modifications, or any other causes which are not the result of defective materials or workmanship. Please refer to the product manuals (and ALI documentation where it applies) included in the scope of delivery with every product.
- 4. Warranty claims MUST be submitted via email or fax, and must include a detailed description of the issue that initially incited the claim, in addition to photographic evidence of the part in question.
- 5. All warranty service work requires written approval by an authorized OMER USA, Inc. representative (Service Manager, Sales Manager, or General Manager) prior to starting any work, travel, etc. Without prior approval, any warranty work expenses will be declined. compensation.
- 6. A completed “Service Itinerary Report” with customer signature needs to be submitted to OMER USA with each Service Expense Report within five (5) working days after completing the work. Failure to comply with these policies may result in non-reimbursement for such work.
Rates and Conditions for Reimbursable Warranty Service Work
- 1. Cost of initial service call: $95.00
Note: Initial service call includes the first one hour of on-site service and up to 50 miles of travel.
- 2. Additional hourly rate on site: $75.00
- 3. Hourly rate for travel only: $50.00
- 4. Per mile reimbursement over 50 miles: $0.60/mile
- 5. Other Expenses:
Any additional service expenses incurred for travel other than those noted above require prior approval and will be arranged by OMER USA. This includes, but is not limited to airline ticks, hotel rooms, and rental car usage.

